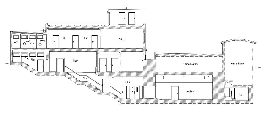
Erstellen von 3D-Modellen und 2D-Plänen aus Ihrer Punktwolke
Wir übernehmen die Bearbeitung Ihrer Punktwolke und erstellen daraus präzise 3D-Gebäudemodelle oder detaillierte 2D-CAD-Pläne.
Mit modernster Software wandeln wir Ihre Punktwolke in maßstabgerechte, aussagekräftige Modelle und Pläne um, die Sie für Ihre weitere Planung nutzen können.



























