„Hat super funktioniert, sauber gearbeitet und sehr schnell geliefert. Perfekt.“
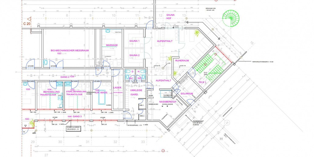
Beipielplan Thermalbad/Bäderkomplex (2D/2,5D):
Grundriss, Schnitt
Beispieldatei Lagergebäude (3D/Revit):
Ansicht, Schnitt
Laden Sie sich Beispieldateien im gewünschten Format herunter. Schauen Sie sich unsere einszueins-Layerstruktur (Standard-Lieferung) an und testen Sie die Weiterbearbeitung. Gerne bieten wir Ihnen eine Vektorisierung nach Ihren eigenen CAD-Richtlinien/Vorgaben an.
2D/2,5D: AutoCAD/DWG DOWNLOAD Beispielplan AutoCAD
2D: AutoCAD/DXF DOWNLOAD Beispielplaene DXF
2D: Allplan DOWNLOAD Beispielplan Allplan
2D: Microstation/DGN DOWNLOAD Beispielplan Microstation
2D: Vectorworks/VWX DOWNLOAD Beispielplan Vectorworks
2D: PDF DOWNLOAD Beispielplan PDF
3D: REVIT DOWNLOAD Beispieldatei Revit


| vorher: Papier-Planvorlage/Scan Grundriss | nachher: CAD-Beispielplan einszueins Grundriss |
vorher: Papier-Planvorlage/Scan Grundriss

nachher: CAD-Beispielplan einszueins Grundriss

nachher: CAD-Beispielplan einszueins 2,5D

„Wir sind mit den Leistungen von einszueins sehr zufrieden. Die Kontaktfreundlichkeit, die Auftragsabwicklung, die erbrachten Leistungen sowie das Preis-Leistungs-Verhältnis können als positiv beurteilt werden. Sollte eine Punktzahl vergeben werden, dann erhalten Sie 100 von 100 Punkten.“
„Hat super funktioniert, sauber gearbeitet und sehr schnell geliefert. Perfekt.“
„Die Digitalisierung der Dateien passiert immer sehr schnell. Es wird nach unseren Wünschen gearbeitet und unsere spezifischen Vorgaben werden eingehalten. Auch bei großen Planbeständen. Kommunikation stimmt auch. Immer wieder gerne!“
„Wir waren wieder sehr zufrieden und haben gestaunt, mit welcher aus unserer Sicht schlechter Vorlage sie arbeiten konnten. Da erkennt man gleich die Erfahrung, die Ihre Mitarbeiter in baufachlicher Hinsicht haben.“
„Unsere meist älteren Bestandspläne digital vorliegen zu haben, erspart uns unglaublich viel Zeit und Arbeit. Eventuelle Fehler werden umgehend behoben. Kurzum, wir sind sehr zufrieden mit den Leistungen und werden den CAD-Service weiterhin in Anspruch nehmen.“
„Das Büro, mit dem wir zusammenarbeiten, und unser Architekt waren sehr begeistert von den CAD-Dateien.“
„Beratung, Service, Zeitablauf: supergut. Einszueins-Layerstruktur: stimmig, eindeutig, gut weiterzubearbeiten. Grundrisse: gut. Dass Unstimmigkeiten in den Plänen direkt markiert wurden, war für uns ein besonders hilfreicher Service.“
„Mit den Ergebnissen der Vektorisierung sind wir sehr zufrieden. Die Arbeit wird zeitnah erledigt, und die CAD-Daten sind für unsere Weiterverarbeitung sehr gut geeignet. Besten Dank.“
„Als Architekten, die schon lange in der Branche sind, zeichnen wir gewisse Pläne immernoch konventionell von Hand. Da ist ihr Angebot perfekt, das Preis-Leistungsverhältnis angemessen und es geht schnell. Denn heutzutage verlangen alle Ingenieure und Spezialisten grundsätzlich DXF/DWG-Päne. Wenn es Ihren Service nicht gäbe, müssten wir das Zeichnen von Hand wahrscheinlich komplett einstellen.“
„Ich habe einszueins im Internet gefunden und angerufen. Ich wurde am Telefon umfassend über die Möglichkeiten informiert, kompetent und höflich, sodass ich beauftragt habe. In kurzer Zeit wurden die digitalen Pläne erstellt, in hoher Qualität und zu einem fairen Preis. Ich bin begeistert von der hohen Professionalität.“
„Die Zeichnungen von einszueins sind 1a. Es lässt sich sehr gut damit arbeiten. Wir empfehlen Sie auch gerne weiter. Auch da haben wir immer positive Rückmeldungen.“
„Wir hatten ein paar kleine Korrekturen in den CAD-Dateien. Das wurde umgehend in Ordnung gebracht. Nach der Korrektur war die Ausführung anstandslos. Fachlich für uns die Besten!“
„Ihren Service habe ich auf Empfehlung eines Kollegen in Anspruch genommen. Ich kann sagen, dass er nicht übertrieben hat: hervorragende Qualität, nette Ansprechpartner, rasche Erledigung. Ich bin voll und ganz zufrieden und werde Ihren Service gerne wieder nutzen.“
„Unser Auftrag wurde korrekt umgesetzt. Wir freuen uns, einen guten kompetenten Partner gefunden zu haben.“
„Volle Punktzahl für Betreuung und Kontakt. Sehr netter und zuverlässiger Service und termingetreue Erledigung. Die Dateien gingen an unser Architekturbüro. Es war keinerlei Nachbereitung notwendig.“
„Die Leistung war wie immer hervorragend und preislich unschlagbar.“
„Ich hatte unserem Zeichner Ihre im Internet verfügbare Beispieldatei gezeigt. Er wollte nicht glauben, dass es möglich ist, ein vollständig verwendbares DWG aus einer alten Zeichnung zu erstellen. Bis er die bei Ihnen in Auftrag gegebene Zeichnung erhielt. Wir haben inzwischen viele weitere Zeichnungen zu Ihnen zur Vektorisierung gegeben. Was kann mehr für Ihren Service sprechen. Schnell, qualitativ einwandfrei und ein super Preis.“
„Die CAD-Daten waren super aufbereitet. Alles prima beim Einlesen und bei der Bearbeitung.“
„Es hat alles gepasst und der zugesagte Liefertermin wurde eingehalten, sodass wir den Auftrag, wie von uns gewünscht, noch in diesem Haushaltsjahr abrechnen konnten. Wir empfehlen einszueins gerne weiter. Danke.“
„Ich war sehr zufrieden, insbesondere über die Genauigkeit und das Eintragen von sog. Achtungspunkten bei unstimmigen Maßketten. Besonders der ausführliche Layer-Stammbaum macht das Arbeiten mit Ihren Digitalisierungen zu einer Freude. Auch wenn ab und an kleine Rechtschreibfehler auftauchen – die Zeichnungen und Vermaßungen sind immer einwandfrei. Eine zuverlässige Arbeit, die unser Team sinnvoll unterstützt!“
„Qualität und Geschwindigkeit der Ausführung waren gut, die Abwicklung des Auftrags war einfach und unbürokratisch. Besonders hilfreich war die schnelle Lieferung in nur zwei Tagen.“
„Die CAD-Pläne waren, bis auf einen kleinen Fehler, der sehr schnell behoben wurde, wie immer tadellos. Wir empfehlen Sie gerne weiter.“
„Es war alles in Ordnung. Auch der Dialog per Telefon und E-Mail war immer verbindlich. Ich konnte die erstellten CAD-Dateien sofort einsetzen und das Projekt termingerecht voran bringen. Ziel erreicht!“
„Das einzueins-Team liefert Super-Qualität! Schnelle Bearbeitung! Freundlichkeit! Einfach TOP! Umsetzung sehr gut, Layerstruktur klar und aufgeräumt.“
„Pläne sind gut. Konnten damit sofort weiterarbeiten.“
„Vielen Dank für die rasche und gute Bearbeitung des Auftrages und die problemlose Vektorisierung. Wir waren von der zeitnahen Bearbeitung und Übersendung der digitalisierten Pläne begeistert. Das Preis-Leistungsverhältnis hat gepasst. Auf unsere Wünsche wurde eingegangen. Abwicklung und Erreichbarkeit waren sehr gut. Layerstruktur und Umsetzung einwandfrei. Jederzeit wieder!“
„Wir sind mit Ihren Leistungen voll zufrieden. Eine einfache und unkomplizierte Abwicklung sowie gute Kommunikation. Bitte weiter so! Wir werden Sie in jedem Fall weiterempfehlen.“
„Schnelle und einwandfreie Leistung. Die Dateien konnten problemlos übernommen werden und sind in den Produktionsprozess bereits eingeflossen.“
„Es war wie immer perfekt und nahezu ein Wunder, wie das sein kann, das aus alten Plänen vollaufgelöste CAD-Dateien werden mit präzise zugeordneten Layern.“
Diese Webseite verwendet Cookies, um Ihnen das bestmögliche Erlebnis auf unserer Webseite zu ermöglichen.
Alle Einstellungen akzeptierenEinstellungenBenachrichtigung verbergenWir können Cookies anfordern, die auf Ihrem Gerät eingestellt werden. Wir verwenden Cookies, um uns mitzuteilen, wenn Sie unsere Websites besuchen, wie Sie mit uns interagieren, Ihre Nutzererfahrung verbessern und Ihre Beziehung zu unserer Website anpassen.
Klicken Sie auf die verschiedenen Kategorienüberschriften, um mehr zu erfahren. Sie können auch einige Ihrer Einstellungen ändern. Beachten Sie, dass das Blockieren einiger Arten von Cookies Auswirkungen auf Ihre Erfahrung auf unseren Websites und auf die Dienste haben kann, die wir anbieten können.
Diese Cookies sind unbedingt erforderlich, um Ihnen die auf unserer Webseite verfügbaren Dienste und Funktionen zur Verfügung zu stellen.
Da diese Cookies für die auf unserer Webseite verfügbaren Dienste und Funktionen unbedingt erforderlich sind, hat die Ablehnung Auswirkungen auf die Funktionsweise unserer Webseite. Sie können Cookies jederzeit blockieren oder löschen, indem Sie Ihre Browsereinstellungen ändern und das Blockieren aller Cookies auf dieser Webseite erzwingen. Sie werden jedoch immer aufgefordert, Cookies zu akzeptieren / abzulehnen, wenn Sie unsere Website erneut besuchen.
Wir respektieren es voll und ganz, wenn Sie Cookies ablehnen möchten. Um zu vermeiden, dass Sie immer wieder nach Cookies gefragt werden, erlauben Sie uns bitte, einen Cookie für Ihre Einstellungen zu speichern. Sie können sich jederzeit abmelden oder andere Cookies zulassen, um unsere Dienste vollumfänglich nutzen zu können. Wenn Sie Cookies ablehnen, werden alle gesetzten Cookies auf unserer Domain entfernt.
Wir stellen Ihnen eine Liste der von Ihrem Computer auf unserer Domain gespeicherten Cookies zur Verfügung. Aus Sicherheitsgründen können wie Ihnen keine Cookies anzeigen, die von anderen Domains gespeichert werden. Diese können Sie in den Sicherheitseinstellungen Ihres Browsers einsehen.
Wir nutzen auch verschiedene externe Dienste wie Google Webfonts, Google Maps und externe Videoanbieter. Da diese Anbieter möglicherweise personenbezogene Daten von Ihnen speichern, können Sie diese hier deaktivieren. Bitte beachten Sie, dass eine Deaktivierung dieser Cookies die Funktionalität und das Aussehen unserer Webseite erheblich beeinträchtigen kann. Die Änderungen werden nach einem Neuladen der Seite wirksam.
Google Webfont Einstellungen:
Google Maps Einstellungen:
Google reCaptcha Einstellungen:
Vimeo und YouTube Einstellungen:
Sie können unsere Cookies und Datenschutzeinstellungen im Detail in unseren Datenschutzrichtlinie nachlesen.
Datenschutz























